
室内行业的职友集岗位需求数据和前程数据平均月薪是缺口越来越大,薪资逐渐升高。根据中国产业信息报告显示,室内人才短缺高达40万,未来30~50年,仍处于上升状态。而招聘企业更加注重设计人才的能力,只要拥有一身本领,不愁找不到工作。
天琥室内全案课程,让学员精通技能操作的同时,
也具备项目分析、方案设计、洽谈等各项能力,培养学员成为复合型设计人才。
具备能力 icon 家居风水、施工工艺、工程预算、项目分析、客户洽谈
掌握技能 icon CAD制图、3DS MAX效果图、VR全景、软装设计、柜体定制
将基础的理论知识与实际案例操作相融合,你将掌控CAD操作,擅长各种施工图绘制;还能独立完成毛坯房预算清单制作。
| | |
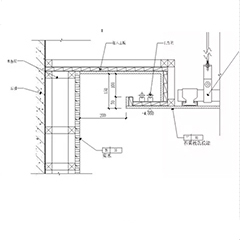
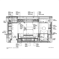
| 立面施工图 | 平面施工图 | 节点大样施工图 |
此阶段你将深入学习3Ds Max软件应用,学习各种空间效果图输出,整体水平达到精通阶段。
- 01家装空间
室内布景整体建模及V-Ray渲染,模型素材导入,物理摄影机及渲染。
- 02工装项目
办公大堂效果图,餐饮空间方案制作效果图,完善案例效果图、细节调整。
- 03建模操作
座椅建模方法,家居场景建模考核,产品与场景渲染及V-Ray材质进阶。
你将精通家装方案设计,具备户型布局、家居风水、方案汇报等能力;
根据不同房型和需求定制个性化柜体,让空间利用达到更饱满。
| | |
| 立面施工图 | 小鞋柜定制 | 书桌柜定制 |
| | |
| 电视柜定制 | 上下床定制 | 厨房柜定制 |
你将掌握色彩搭配原则,了解软装产品款式、材质,清晰软装主题设定、运用;擅长新中式、现代简约等软装风格。
+ 地中海风格
+ 北欧风格
+ 现代简约风格
+ 新中式风格
帮助学员,熟悉装修工程具体施工工艺,能更好的让设计作品落地以及现场施工指导。
+ 木作工程工艺
+ 电气工程工艺
+ 油漆工程工艺
室内设计是从建筑设计中的装饰部分演变出来的。他是对建筑物内部环境的再创造。
上海天琥室内就业班
室内设计是具有视觉限定的人工环境,也是功能、空间形体、工程技术和艺术的结合体。- 01 对比
对比是艺术设计的基本定型技巧,把两种不同的事物、形体、色彩等作对照就称为对比。
- 02 和谐
和谐包含谐调之意。它是在满足功能要求的前提下,使各种室内物体的形、色、光、质等组合得到协调,成为一个非常和谐统一的整体。
- 03 均衡
生活中金鸡独立,演员走钢丝,从力的均衡上给人稳定的视觉艺术享受,使人获得视觉均衡心理,均衡是依中轴线、中心点不等形而等量的形体、构件、色彩相配置。
传授项目实战经验、CAD制图实用技巧与操作精髓
白冬 CAD制图讲师15+年设计工作经验 5+年教学经验 注册建造师
项目经验:石家庄美术馆室内外装饰、石家庄公安局室内外装饰、石家庄东明家具多家店铺室内外装饰、恒大金碧天下别墅、北京易郡别墅等大型项目
徐东 软装定制讲师10+年设计工作经验 3+年教学经验 软装定制实战讲师
项目经验:楚雄君悦酒店室内装饰项目、西双版纳告庄会所室内装饰、成都浦江别墅室内改造、普宁县人民法院室内装饰、昆医府二院室内装饰改造、万科金域提香样板及精装房设计等大型项目
天琥成立2002年,上市公司旗下品牌,让你学得无虑
- 1
实战教学贯穿课程,学习效率更高
- 2
职业规划师跟踪辅导,解决就业难题
- 3
可“先学习后付款”,解决学费难题
- 4
学不会可以重修,0基础也不怕
天琥与众多企业签订就业合作协议,定期输送室内人才,学员毕业后进入名企工作,积累大公司经验。

182-1028-9671
在线咨询